Ruime nieuwbouwwoning met 4 slaapkamers te RIEME/Ertvelde !
Verkocht Evergem Riemewegel 4 B
LAATSTE WONING TE KOOP (4C)
Prijzen excl. 21% BTW en registratierechten.
Dit unieke nieuwbouwproject heeft een super prijs/kwaliteits verhouding, dit omwille van de mooie rustige ligging te Rieme en hun ruime binnenruimtes ! Maar liefst 190 m² bewoonbare oppervlakte ! Deze woning wordt zowel binnen als buiten volledig afgewerkt !
Troeven/specificaties:
- Bewoonbare oppervlakte van 190 m² ! HOB
- Uitstekend E-PEIL 30 - zeer energiezuinig (CV-ketel op aardgas, dubbel glas MET vliegramen, totale isolatie,...)
- Deels vloerverwarming + ventilatiesysteem
- Mooie open keuken incl. ALLE toestellen (SIEMENS !)
- 4 ZEER RUIME slaapkamers
- Oprit naast de woning.
- Betaling bij AKTE/OPLEVERING !
- Oplevering mei 2022 !
- Aansluitingskosten incl. de prijs
- Prijs excl. 21% BTW (constructie) en de registratierechten op de grond !
Indeling:
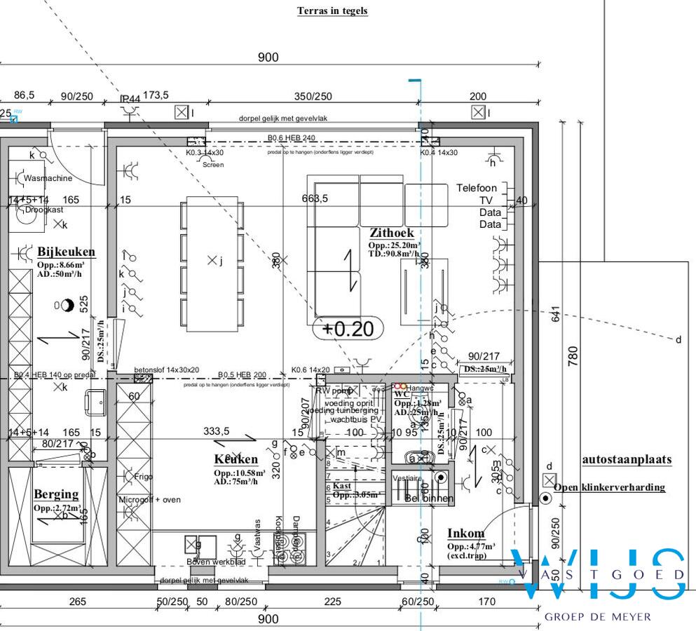
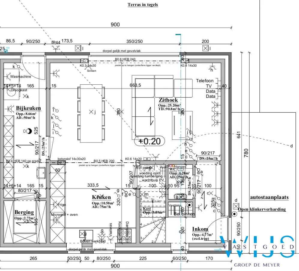
Gelijkvloers: Inkom, apart toilet, ruime leefruimte met open keuken, bijkeuken/wasplaats, berging en de ZUIDgerichte tuin met ... zonneterras.
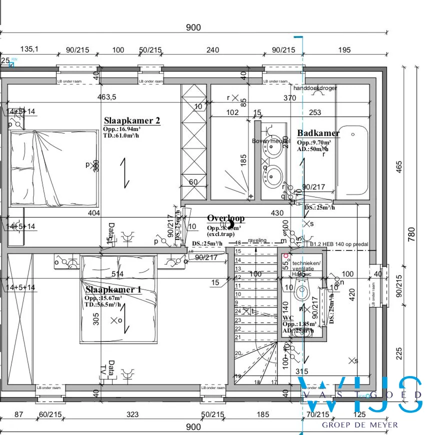
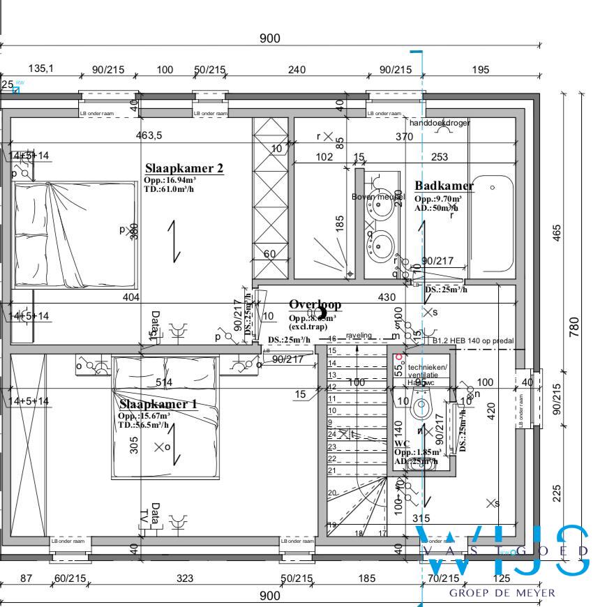
1ste verdieping: Nachthal, 2 ruime slaapkamers en de badkamer met bad, INLOOPdouche en het apart toilet.
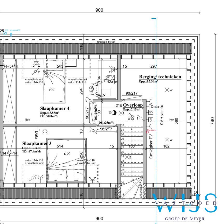
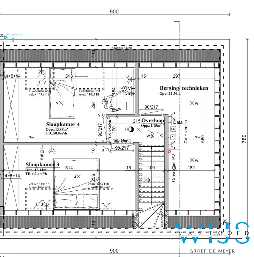
2de verdieping (vaste trap!): 2 ruime slaapkamer en technische ruimte/berging.
Terras en oprit zijn voorzien ! Totale afwerking !
Absolute aanrader !
Plannen, lastenboek en extra info beschikbaar via Mathias Teirlynck 0473 818 517 Lees meer Verberg
Prijzen excl. 21% BTW en registratierechten.
Dit unieke nieuwbouwproject heeft een super prijs/kwaliteits verhouding, dit omwille van de mooie rustige ligging te Rieme en hun ruime binnenruimtes ! Maar liefst 190 m² bewoonbare oppervlakte ! Deze woning wordt zowel binnen als buiten volledig afgewerkt !
Troeven/specificaties:
- Bewoonbare oppervlakte van 190 m² ! HOB
- Uitstekend E-PEIL 30 - zeer energiezuinig (CV-ketel op aardgas, dubbel glas MET vliegramen, totale isolatie,...)
- Deels vloerverwarming + ventilatiesysteem
- Mooie open keuken incl. ALLE toestellen (SIEMENS !)
- 4 ZEER RUIME slaapkamers
- Oprit naast de woning.
- Betaling bij AKTE/OPLEVERING !
- Oplevering mei 2022 !
- Aansluitingskosten incl. de prijs
- Prijs excl. 21% BTW (constructie) en de registratierechten op de grond !
Indeling:
Gelijkvloers: Inkom, apart toilet, ruime leefruimte met open keuken, bijkeuken/wasplaats, berging en de ZUIDgerichte tuin met ... zonneterras.
1ste verdieping: Nachthal, 2 ruime slaapkamers en de badkamer met bad, INLOOPdouche en het apart toilet.
2de verdieping (vaste trap!): 2 ruime slaapkamer en technische ruimte/berging.
Terras en oprit zijn voorzien ! Totale afwerking !
Absolute aanrader !
Plannen, lastenboek en extra info beschikbaar via Mathias Teirlynck 0473 818 517 Lees meer Verberg