ULTRA ruime nieuwbouwwoning met 5 slaapkamers, 2 badkamers te RIEME/ERTVELDE !
Verkocht Evergem Riemewegel 4 A
Prijzen excl. 21% BTW en registratierechten.
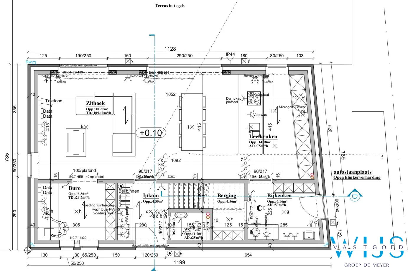
Dit unieke nieuwbouwproject heeft een super prijs/kwaliteits verhouding, dit omwille van de mooie rustige ligging te Rieme en hun ruime binnenruimtes ! Maar liefst 220 m² bewoonbare oppervlakte ! Met 5 slaapkamers, 3 toiletten, 2 badkamers, extra bureauruimte, 3 bergingen en een aangename leefruimte incl.open keuken komt u geen ruimte(s) te kort ! Deze woning wordt zowel binnen als buiten volledig afgewerkt !
Troeven/specificaties:
- Bewoonbare oppervlakte van 220 m² - OPEN BEBOUWING!
- Uitstekend E-PEIL 30 - zeer energiezuinig (CV-ketel op aardgas, dubbel glas MET vliegramen, totale isolatie,...)
- Deels vloerverwarming + ventilatiesysteem
- Mooie open keuken incl. toestellen (SIEMENS !)
- 5 ZEER RUIME slaapkamers
- Bureauruimte naast de leefruimte aanwezig
- Oprit naast de woning.
- Betaling bij AKTE/OPLEVERING !
- Oplevering mei 2022 !
- Aansluitingskosten incl. de prijs
- Prijs excl. 21% BTW (constructie) en de ... registratierechten op de grond !
Indeling:
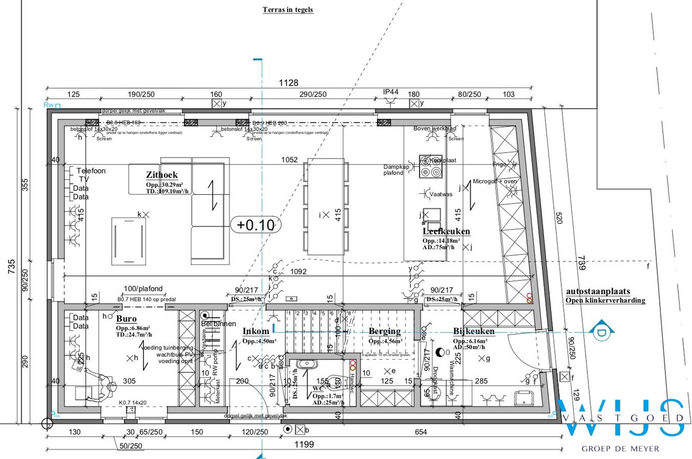
Gelijkvloers: Inkom, apart toilet, ruime leefruimte met open keuken, bureauruimte, bijkeuken/wasplaats, berging en de ZUIDgerichte tuin met zonneterras.
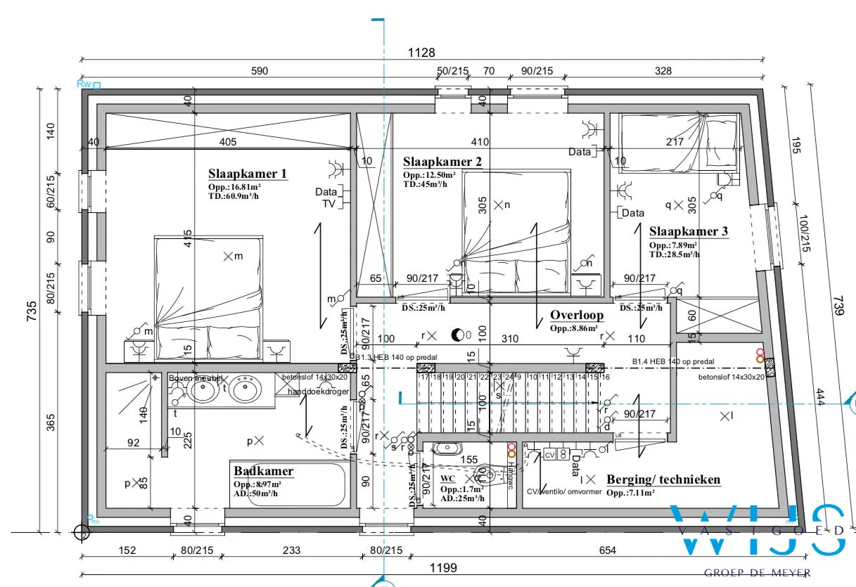
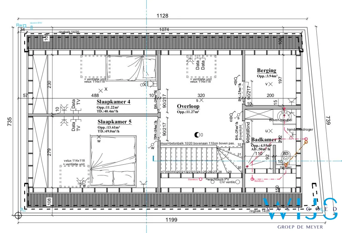
1ste verdieping: 3 ruime slaapkamers, apart toilet, badkamer met bad & douche en berging.
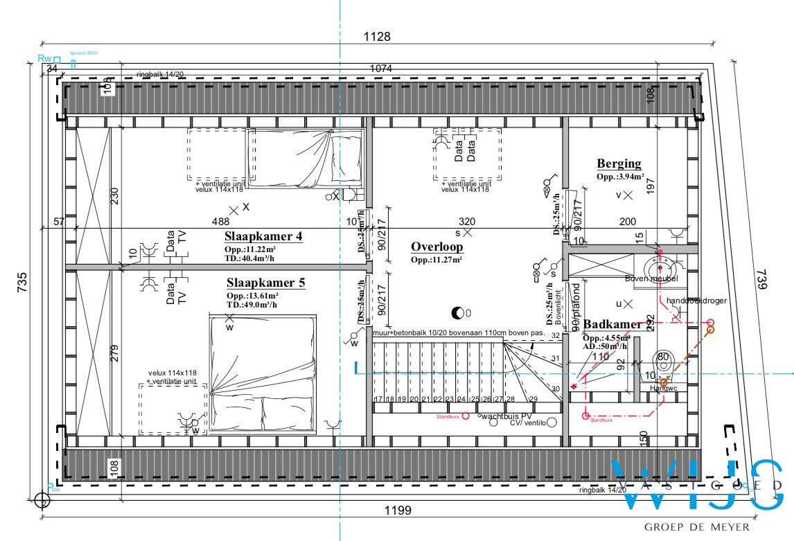
2de verdieping: 2 ruime slaapkamers, berging, 2de badkamer met douche & toilet.
Terras en oprit zijn voorzien ! Totale afwerking !
Absolute aanrader !
Plannen, lastenboek en extra info beschikbaar via Mathias Teirlynck 0473 818 517 Lees meer Verberg
Dit unieke nieuwbouwproject heeft een super prijs/kwaliteits verhouding, dit omwille van de mooie rustige ligging te Rieme en hun ruime binnenruimtes ! Maar liefst 220 m² bewoonbare oppervlakte ! Met 5 slaapkamers, 3 toiletten, 2 badkamers, extra bureauruimte, 3 bergingen en een aangename leefruimte incl.open keuken komt u geen ruimte(s) te kort ! Deze woning wordt zowel binnen als buiten volledig afgewerkt !
Troeven/specificaties:
- Bewoonbare oppervlakte van 220 m² - OPEN BEBOUWING!
- Uitstekend E-PEIL 30 - zeer energiezuinig (CV-ketel op aardgas, dubbel glas MET vliegramen, totale isolatie,...)
- Deels vloerverwarming + ventilatiesysteem
- Mooie open keuken incl. toestellen (SIEMENS !)
- 5 ZEER RUIME slaapkamers
- Bureauruimte naast de leefruimte aanwezig
- Oprit naast de woning.
- Betaling bij AKTE/OPLEVERING !
- Oplevering mei 2022 !
- Aansluitingskosten incl. de prijs
- Prijs excl. 21% BTW (constructie) en de ... registratierechten op de grond !
Indeling:
Gelijkvloers: Inkom, apart toilet, ruime leefruimte met open keuken, bureauruimte, bijkeuken/wasplaats, berging en de ZUIDgerichte tuin met zonneterras.
1ste verdieping: 3 ruime slaapkamers, apart toilet, badkamer met bad & douche en berging.
2de verdieping: 2 ruime slaapkamers, berging, 2de badkamer met douche & toilet.
Terras en oprit zijn voorzien ! Totale afwerking !
Absolute aanrader !
Plannen, lastenboek en extra info beschikbaar via Mathias Teirlynck 0473 818 517 Lees meer Verberg