Schitterend en rustig gelegen nieuwbouwwoning te ASSENEDE
Verkocht Assenede Baljuwstraat 10
Dit fantastisch mooi nieuwbouwproject is uniek voor de streek, dit omwille van de mooie ligging en hun binnenruimtes !
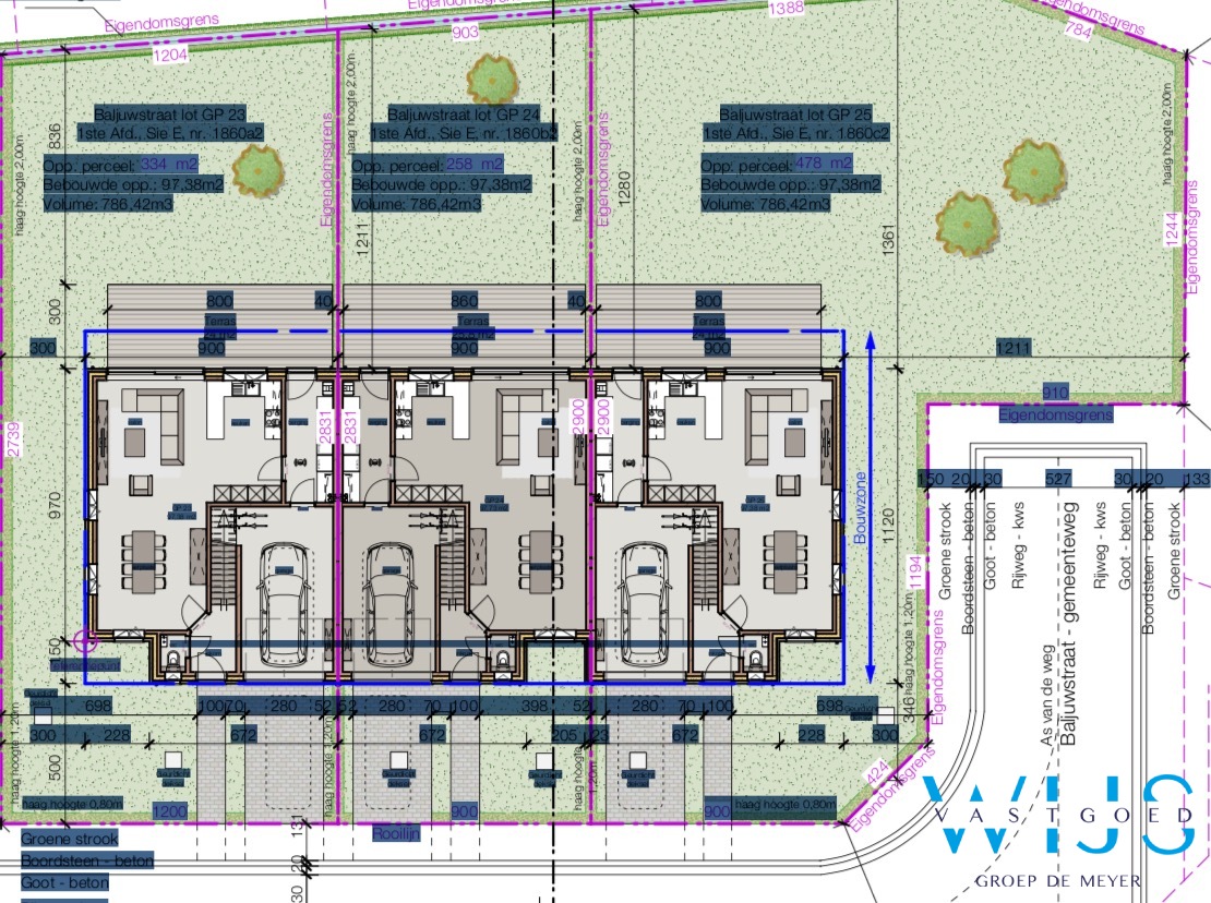
Gelegen in de doodlopende straat (wijk) op een ideale oriëntatie !
DEZE RUIMTES EN AFWERKING ZIJN UNIEK ! 200% AFGEWERKT ! 263m² bewoonbaar ! 478m² grond !
Specificaties Woning Baljuwstraat 10 :
Indeling:
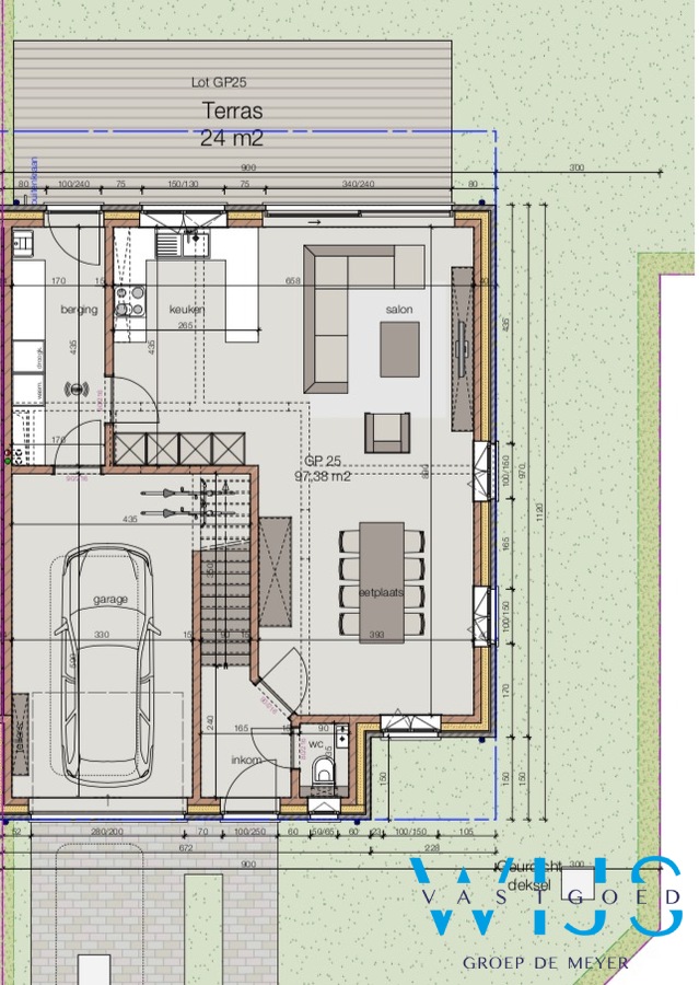
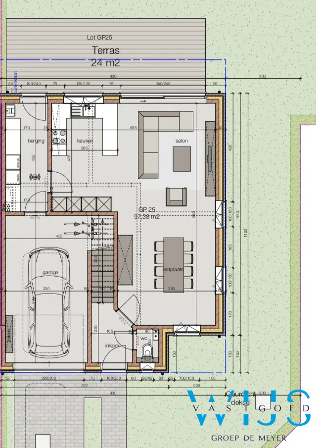
Gelijkvloers: Inkom met apart toilet, lichtrijke enorm ruime leefruimte met veel lichtinval, keukenruimte (positie keuken zelf te kiezen), bijkeuken, ruime berging en de ruime garage met berging onder de trap.
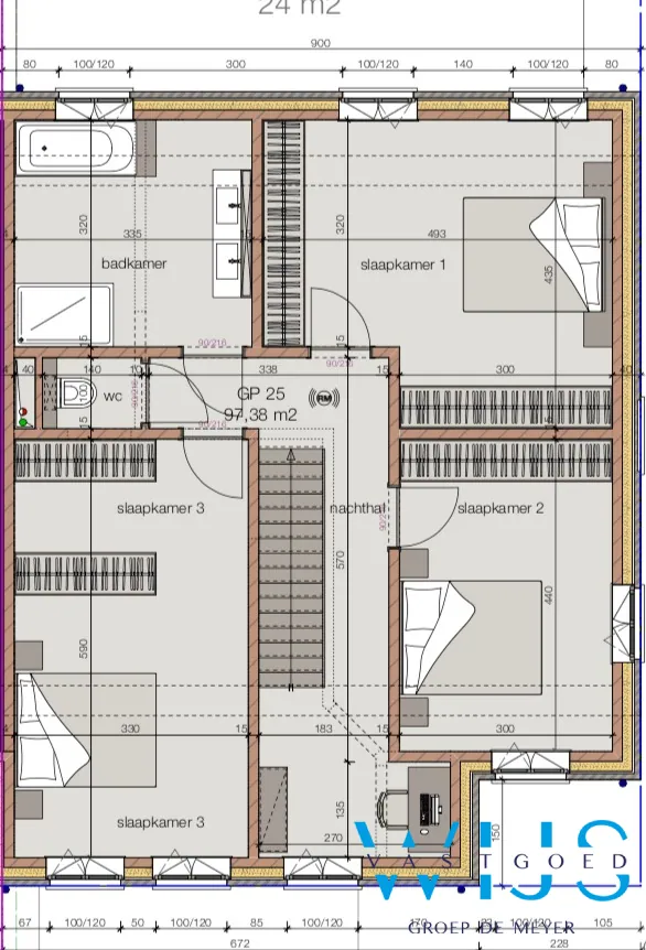
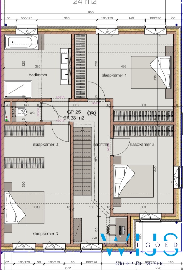
Verdieping 1: Nachthal, 3 ruime slaapkamers waarvan 1 van 20 vierkante meter + badkamer met bad, INLOOPdouche en apart toilet. Verdieping 2 (vaste trap): 2 ruime multifunctionele ruimtes of 2 slaapkamers !
Terras, oprit en tuinafsluiting worden ook volledig voorzien ! Totale afwerking
Details :
- Bewoonbare oppervlakte van 263m² !
- Vooruitstrevende energievoorzieningen incl. Zonnepanelen
- Vloerverwarming + verluchtingssysteem
- 5 ruime ... slaapkamers (mogelijk)
- Ruime garage
- Hoogwaardige afwerkingen en materiaalkeuzes met hoge handelswaardes. Miele, hansgrohe, ...
- Keuken, badkamer en afwerkingen naar keuze !
- Betaling bij AKTE/OPLEVERING !!!
- Oplevering najaar 2019
- Prachtige rustige ligging !
- Prijs excl. 21% BTW (constructie) en registratierechten op de grond !
Absolute aanrader ! Dit moet je zien !
Plannen, lastenboek en extra info beschikbaar via Mathias Teirlynck 0473 818 517
Lees meer Verberg
Gelegen in de doodlopende straat (wijk) op een ideale oriëntatie !
DEZE RUIMTES EN AFWERKING ZIJN UNIEK ! 200% AFGEWERKT ! 263m² bewoonbaar ! 478m² grond !
Specificaties Woning Baljuwstraat 10 :
Indeling:
Gelijkvloers: Inkom met apart toilet, lichtrijke enorm ruime leefruimte met veel lichtinval, keukenruimte (positie keuken zelf te kiezen), bijkeuken, ruime berging en de ruime garage met berging onder de trap.
Verdieping 1: Nachthal, 3 ruime slaapkamers waarvan 1 van 20 vierkante meter + badkamer met bad, INLOOPdouche en apart toilet. Verdieping 2 (vaste trap): 2 ruime multifunctionele ruimtes of 2 slaapkamers !
Terras, oprit en tuinafsluiting worden ook volledig voorzien ! Totale afwerking
Details :
- Bewoonbare oppervlakte van 263m² !
- Vooruitstrevende energievoorzieningen incl. Zonnepanelen
- Vloerverwarming + verluchtingssysteem
- 5 ruime ... slaapkamers (mogelijk)
- Ruime garage
- Hoogwaardige afwerkingen en materiaalkeuzes met hoge handelswaardes. Miele, hansgrohe, ...
- Keuken, badkamer en afwerkingen naar keuze !
- Betaling bij AKTE/OPLEVERING !!!
- Oplevering najaar 2019
- Prachtige rustige ligging !
- Prijs excl. 21% BTW (constructie) en registratierechten op de grond !
Absolute aanrader ! Dit moet je zien !
Plannen, lastenboek en extra info beschikbaar via Mathias Teirlynck 0473 818 517
Lees meer Verberg