Projectgrond Rieme/Ertvelde
Vraagprijs
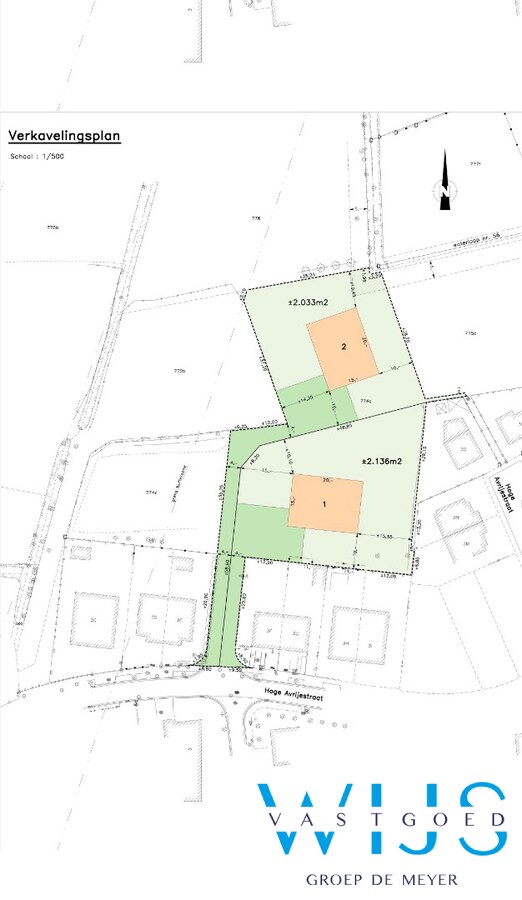
Projectgrond te koop in Ertvelde (Rieme) met een totale oppervlakte van 5.790 m². Het perceel omvat deels een bufferzone, wat mogelijkheden biedt binnen een doordachte ontwikkelingscontext.
Er zijn nog geen vergunningen op deze grond(en) van toepassing. Aanvragen dienen opgestart te worden.
Voor meer informatie en specifieke details kan u steeds terecht op ons kantoor.
Er zijn nog geen vergunningen op deze grond(en) van toepassing. Aanvragen dienen opgestart te worden.
Voor meer informatie en specifieke details kan u steeds terecht op ons kantoor.