Bouwgrond voor OPEN bebouwing te ASSENEDE !
Verkocht Assenede Kloosteraprilstraat
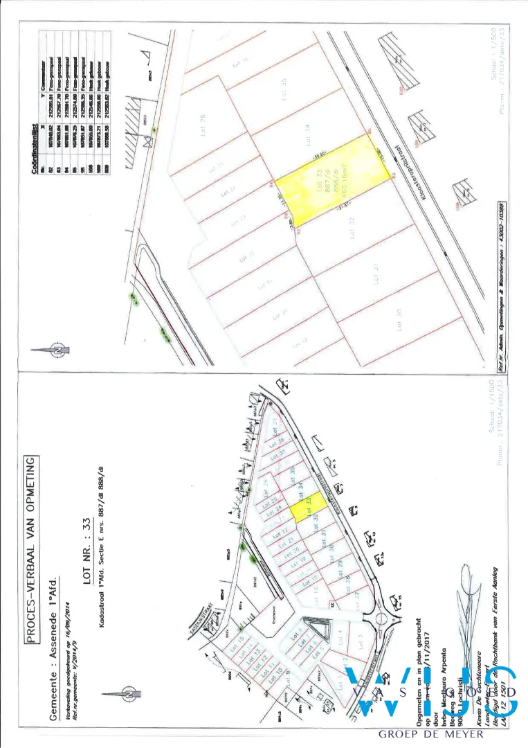
Dit mooi perceel van 460 vierkante meter, geschikt voor OPEN BEBOUWING, is gelegen op een TOPlocatie in het centrum van Assenede.
De grond bevindt zich aan een leuke woonwijk, met het centrum om de hoek. Het perceel heeft een mooie breedte van 15 meter en een ruim woonhuis (keuze in bouwstijl) met mooie bewoonbare oppervlakte + bijgebouw(en) is perfect mogelijk !
Meer info? Bel Mathias 0473 818 517 !
De grond bevindt zich aan een leuke woonwijk, met het centrum om de hoek. Het perceel heeft een mooie breedte van 15 meter en een ruim woonhuis (keuze in bouwstijl) met mooie bewoonbare oppervlakte + bijgebouw(en) is perfect mogelijk !
Meer info? Bel Mathias 0473 818 517 !