Nieuwbouw met 3 slaapkamers te centum ERTVELDE !
Verhuurd Ertvelde Molenwegel 11
NIEUWBOUW - EERSTE BEWONING - OPLEVERING IN MAART/APRIL - KLEINSCHALIG PROJECT !
Deze nieuwbouw heeft een enorm goede ligging te Ertvelde, het bruisende centrum ligt op een oogwenk waar alles nabij is maar toch ligt deze nieuwbouw in ALLE RUST ! ABSOLUTE TOPLOCATIE ! Deze woning voldoet aan alle hedendaagse wensen & energiezuinigheid (E-peil 30, ventilatiesysteem, zonnepanelen,..). Er is een aangename leefruimte met open geïnstalleerde keuken en mooie tuinoppervlakte ! Op de bovenverdieping heeft u 3 mooie slaapkamers en een ruime moderne badkamer ! Er wordt daarnaast een ruime oprit, een aangelegd zonneterras en een praktisch tuinhuis voorzien door de verhuurder ! Als extra heeft u een handige inpandige garage !
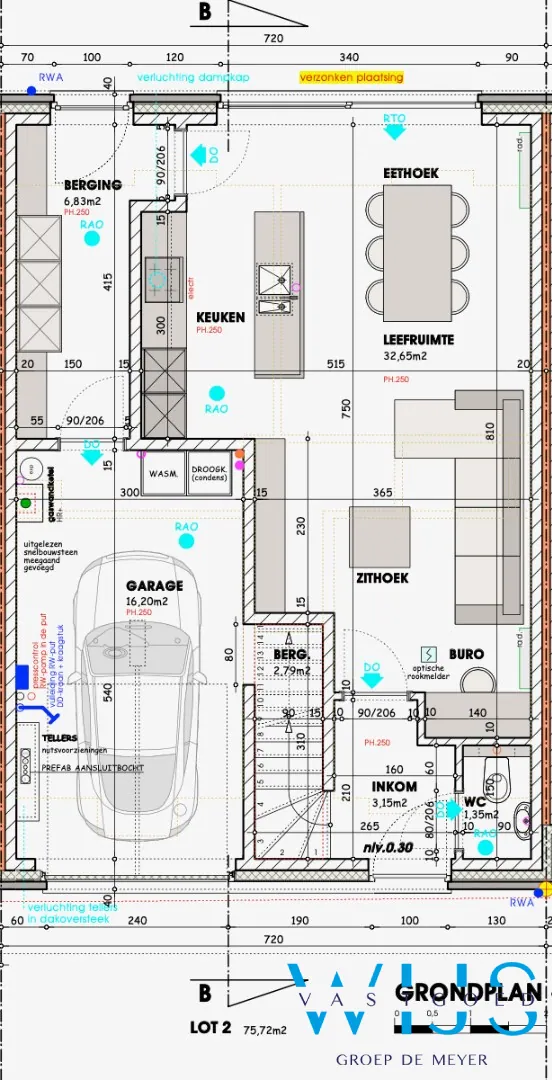
Indeling: inkom, apart toilet, leefruimte met eet- en zithoek, open geïnstalleerde keuken, berging, inpandige garage en de zonnige tuin met terras en buitenberging.
1ste verdieping: nachthal, apart toilet, badkamer en 3 volwaardige slaapkamers.
Meer info of een ... bezoek? Bel Chadia 0470 032 876 ! Lees meer Verberg
Deze nieuwbouw heeft een enorm goede ligging te Ertvelde, het bruisende centrum ligt op een oogwenk waar alles nabij is maar toch ligt deze nieuwbouw in ALLE RUST ! ABSOLUTE TOPLOCATIE ! Deze woning voldoet aan alle hedendaagse wensen & energiezuinigheid (E-peil 30, ventilatiesysteem, zonnepanelen,..). Er is een aangename leefruimte met open geïnstalleerde keuken en mooie tuinoppervlakte ! Op de bovenverdieping heeft u 3 mooie slaapkamers en een ruime moderne badkamer ! Er wordt daarnaast een ruime oprit, een aangelegd zonneterras en een praktisch tuinhuis voorzien door de verhuurder ! Als extra heeft u een handige inpandige garage !
Indeling: inkom, apart toilet, leefruimte met eet- en zithoek, open geïnstalleerde keuken, berging, inpandige garage en de zonnige tuin met terras en buitenberging.
1ste verdieping: nachthal, apart toilet, badkamer en 3 volwaardige slaapkamers.
Meer info of een ... bezoek? Bel Chadia 0470 032 876 ! Lees meer Verberg